Enjoy the flexibility
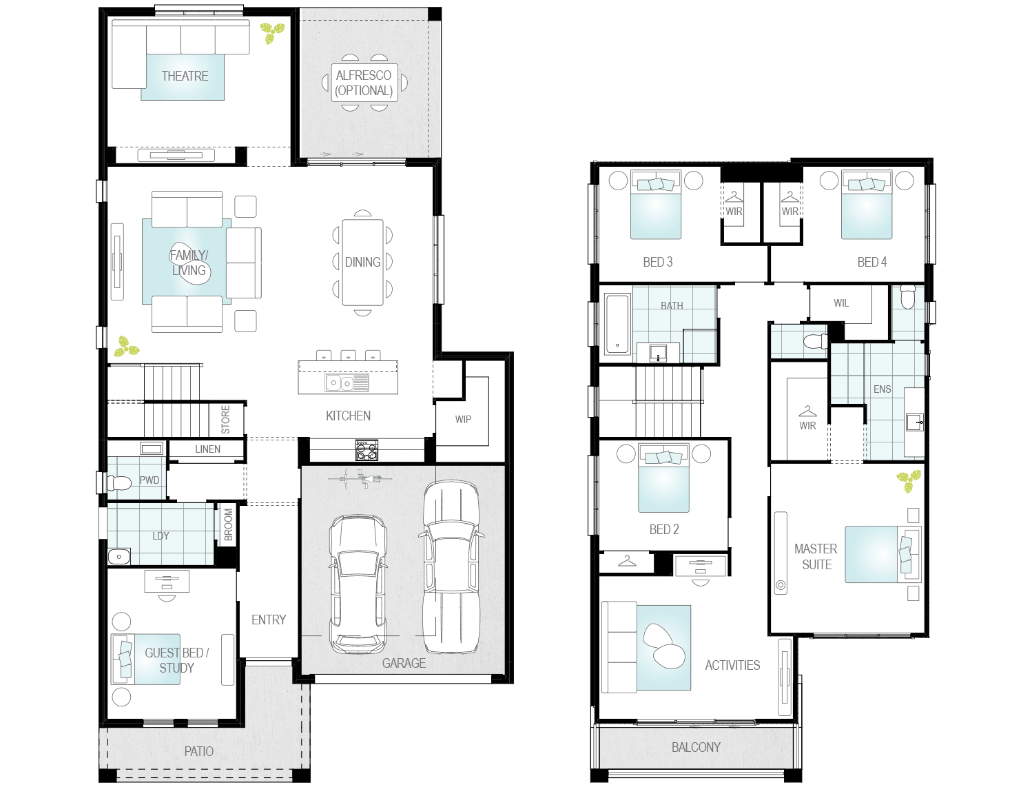
Enjoy every moment of your home thanks to the range of spaces offered in the smartly designed Valiente. With flexibility as its focus, this home transforms to your needs and can be tailored to suit your lifestyle. The front home office becomes an option for an extra guest bedroom should you need the room. With multiple living spaces, your family can relax and unwind in the main family area, the private home theatre or head upstairs to take in the view from the large activities space.


Room Dimensions




Room Dimensions
Additional Features
- Guest bedroom with ensuite and WIR




Room Dimensions




Room Dimensions
Additional Features
- Alternate master suite, ensuite and WIR




Room Dimensions
Additional Features
- Butler's pantry




Room Dimensions
Additional Features
- Guest bedroom with ensuite and WIR




Room Dimensions




Room Dimensions
Additional Features
- Butler's pantry




Room Dimensions
Additional Features
- Alternate master suite, ensuite and WIR layout




Room Dimensions
Additional Features
- Guest bedroom with ensuite and WIR layout


Enquiry

Request your FREE no obligation quote today!
Enquire about your favourite new home design today via the form or call one of our Building and Design Consultants on 1300 555 382 .
*Conditions apply. Note: If you're enquiring about Granny Flats, they are not offered as a stand-alone build. They are constructed at the same time as your main residence.
Virtual Tours
Inclusions
Display Locations
Building and Design Consultants - HomeWorld Thornton
Building and Design Consultants - Wongawilli
Valiente Three
Digital Brochures - Discover our designs at your fingertips
Exploring all of our home designs is even easier with our range of digital brochures. Open the book and the door to your new home!