Light-filled living at its best

The split-level design of the Monterey lets you take full advantage of the surrounding vista of your home while offering a striking street presence and perfect practicality. This upward sloping block house design is a home you’ll always want to come home to.

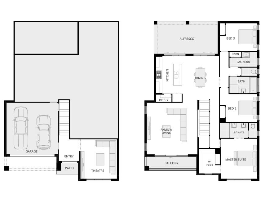
The main living area of the Monterey is upstairs, allowing everyone to enjoy the views opened up by being up off the ground level. Featuring open-plan living and social areas – including a gourmet kitchen with a walk-in pantry and direct access to a large alfresco – it’s a wonderful space for entertaining guests and enjoying quiet time at home with the family.

The master suite, with its spacious walk-in robe and ensuite, is nestled to one side of the home along with the remaining two bedrooms and family bathroom. This accommodation wing creates an area for sanctuary and privacy, making the Monterey an ideal home as your family moves through its life stages.

Designed with both a three- and four-bedroom option, the Monterey gives you plenty of options and versatility. The fourth bedroom is located downstairs with the home theatre and additional bathroom – the ideal teenage retreat or guest room for visitors.

Floor Plans

3 bedroom split level home design monterey floorplan rhs
3 bedroom split level home design monterey floorplan lhs

Design Options

3
 Bed
2
 Bath
2
 Car
2
 Storey
Block Width
14.60m
House Width
12.30m
House Length
17.12m

Room Dimensions

Theatre
3.9 x 4.2
Garage
5.5 x 5.5
Family/Living
5.5 x 5.6
Dining
4.0 x 4.7
Master Suite
3.9 x 4.3
Bed 2
3.4 x 3.0
Bed 3
4.0 x 3.0
Alfresco
6.9 x 3.5
Note: Floor plan will differ slightly with application of different facades. Block widths required differ from area to area, are indicative only and subject to council guidelines and developer requirements. Please check with your Building and Design consultant for details in your area. Total (m²) area includes alfresco or alfresco grande. Non-fixed furniture shown on floor plans, including desks in Study and Study Nooks are indicative only and not included. The sizes of windows and external doors shown may vary from the standard plans due to the new 7 star BASIX equirements effective from October 1, 2023. Please talk to your Building and Design Consultant for more information.
3 bedroom split level house design monterey floorplan with alternate bathroom layout rhs
3 bedroom split level house design monterey floorplan with alternate bathroom layout lhs

Design Options

3
 Bed
2
 Bath
2
 Car
2
 Storey
Block Width
14.60m
House Width
12.30m
House Length
17.12m

Room Dimensions

Theatre
3.9 x 4.2
Garage
5.5 x 5.5
Family/Living
5.5 x 5.6
Dining
4.0 x 4.7
Master Suite
3.9 x 4.3
Bed 2
3.4 x 3.0
Bed 3
4.0 x 3.0
Alfresco
6.9 x 3.5
Note: Floor plan will differ slightly with application of different facades. Block widths required differ from area to area, are indicative only and subject to council guidelines and developer requirements. Please check with your Building and Design consultant for details in your area. Total (m²) area includes alfresco or alfresco grande. Non-fixed furniture shown on floor plans, including desks in Study and Study Nooks are indicative only and not included. The sizes of windows and external doors shown may vary from the standard plans due to the new 7 star BASIX equirements effective from October 1, 2023. Please talk to your Building and Design Consultant for more information.
4 bedroom split level home design monterey floorplan rhs
4 bedroom split level home design monterey floorplan lhs

Design Options

4
 Bed
2
 Bath
1
 Powder
2
 Car
2
 Storey
Block Width
14.60m
House Width
12.30m
House Length
17.12m

Room Dimensions

Bed 4
3.0 x 3.5
Theatre
3.9 x 4.2
Garage
5.5 x 5.5
Family/Living
5.5 x 5.6
Dining
4.0 x 4.7
Master Suite
3.9 x 4.3
Bed 2
3.4 x 3.0
Bed 3
4.0 x 3.0
Alfresco
6.9 x 3.5
Note: Floor plan will differ slightly with application of different facades. Block widths required differ from area to area, are indicative only and subject to council guidelines and developer requirements. Please check with your Building and Design consultant for details in your area. Total (m²) area includes alfresco or alfresco grande. Non-fixed furniture shown on floor plans, including desks in Study and Study Nooks are indicative only and not included. The sizes of windows and external doors shown may vary from the standard plans due to the new 7 star BASIX equirements effective from October 1, 2023. Please talk to your Building and Design Consultant for more information.
4 bedroom split level house design monterey floorplan with alternate bathroom layout rhs
4 bedroom split level house design monterey floorplan with alternate bathroom layout lhs

Design Options

4
 Bed
2
 Bath
1
 Powder
2
 Car
2
 Storey
Block Width
14.60m
House Width
12.30m
House Length
17.12m

Room Dimensions

Bed 4
3.0 x 3.5
Theatre
3.9 x 4.2
Garage
5.5 x 5.5
Family/Living
5.5 x 5.6
Dining
4.0 x 4.7
Master Suite
3.9 x 4.3
Bed 2
3.4 x 3.0
Bed 3
4.0 x 3.0
Alfresco
6.9 x 3.5
Note: Floor plan will differ slightly with application of different facades. Block widths required differ from area to area, are indicative only and subject to council guidelines and developer requirements. Please check with your Building and Design consultant for details in your area. Total (m²) area includes alfresco or alfresco grande. Non-fixed furniture shown on floor plans, including desks in Study and Study Nooks are indicative only and not included. The sizes of windows and external doors shown may vary from the standard plans due to the new 7 star BASIX equirements effective from October 1, 2023. Please talk to your Building and Design Consultant for more information.

Enquiry

CAPTCHA
$30,000* Price Rollback contact form + 20 Month Price Hold^

Request your FREE no obligation quote today!

Enquire about your favourite new home design today via the form or call one of our Building and Design Consultants on 1300 555 382 .

*Conditions apply. Note: If you're enquiring about Granny Flats, they are not offered as a stand-alone build. They are constructed at the same time as your main residence.   

Inclusions

Kitchen
Internal
Bathroom
External
NSW - European designed gourmet laminated kitchen with attractive laminated bench tops.
NSW - Tapware - Posh Bristol MkII Mixer Tap.
NSW - Dishwasher opening with connections.
NSW - Microwave shelf with power point.
NSW - Large pantry with ventilated shelving.
NSW - Fridge area for 1.0 wide fridge freezer unit.
NSW - Full height ceramic tiling to Kitchen bench splash back.
NSW - Choice of quality Omega cooking appliances: Cooktop - Gas Omega OG60XA (stainless steel)/Electric Omega OC64KZ, Oven – OO651XR (stainless steel), Rangehood – Recirculating ORW9XA stainless steel canopy.
ACT - European designed gourmet laminated kitchen with attractive laminated bench tops with overhead cupboards and bulkhead.
ACT - Dishwasher opening with connections.
ACT - Microwave shelf with power point.
ACT - Large pantry with ventilated shelving.
ACT - Posh Solus MkII 1 ¾ bowl overmount sink.
ACT - Fridge area for 1.0m wide fridge freezer unit.
ACT - Full height ceramic tiling to Kitchen bench splash back.
ACT - Choice of quality Omega cooking appliances: Cooktop 600mm – Gas Omega OG60XA (stainless steel)/Electric Omega OC64KZ, Oven 600mm – OO651XR (stainless steel), Rangehood 900mm – Recirculating ORW9XA stainless steel canopy.
NSW - Insulation - R3.0 insulation to first floor ceilings and R2.0 to external walls excluding garage (excludes insulation between ground floor and first floor).
NSW - Ceilings - 2416mm nominal ceiling height.
NSW - Cornice - 75mm cove cornice.
NSW - Paint - Taubmans ‘Endure’ to all internal walls -2 coat system, Flat acrylic to ceiling, Gloss enamel to interior timber and internal/external doors.
NSW - Electrical – As per the standard electrical plan.
NSW - Smoke Detectors - As per the standard electrical plan wired direct to mains power.
NSW - Doors - Flush Panel doors, cushioned door stops, glass sliding doors with key locks.
NSW - Door Furniture - Gainsborough 300 Contractor Series.
NSW - Double door robes where shown with melamine shelves.
NSW - Tapware - Laundry: Base MK2 Mixer Tap.
NSW - Clarke Eureka Plus laundry tub.
NSW - Stairs - Painted timber stringers with medium density fibreboard (MDF) treads and risers, painted handrail and square wrought iron balusters (expansion joint in stairwell covered by painted timber trim.
NSW - Split Level - Piers - 90x90 steel.
ACT - Insulation - R4.1 insulation to ceilings and R2.0 to external walls excluding Garage, Patio and Alfresco (excludes insulation between ground floor and first floor for Two Storey and Split Level).
ACT - Insulation - Insulated lagging to hot and cold water pipes in ceiling space One roof ventilator and two eave vents.
ACT - Insulation - Anticon foil faced blanket (only applicable for Colorbond roof).
ACT - Ceilings - 2400mm nominal ceiling height.
ACT - Cornice - 75mm cove cornice.
ACT - Paint - Taubmans ‘Endure’ to all internal walls -2 coat system, Flat acrylic to ceiling, Gloss enamel to interior timber and internal/external doors.
ACT - Electrical - As per standard electrical plan, including smoke detectors wired direct to mains power.
ACT - Doors - Front door: standard selection from Hume Doors (Vaucluse range), Laundry door: XF3 with half glazed panel or glass sliding door( design specific), Internal: Flush Panel doors, Cushioned door stops, Glass sliding doors with key locks.
ACT - Doors - 42mm half splayed architraves and mouldings.
ACT - Door Furniture - Front entry & Laundry: Gainsborough Governor, Internal: Gainsborough 300 Contractor Series.
ACT - Double door robes with pull handle including fixed melamine shelf and hanging rail.
ACT - Clarke Eureka Plus laundry tub.
ACT - Stairs (Two Storey & Split Level only) - Painted timber stringers with medium density fibreboard (MDF) treads and risers, painted handrail and square wrought iron balusters (expansion joint in stairwell covered by painted timber trim).
NSW - Large selection of ceramic tiles.
NSW - 1800mm high semi framed shower screens with clear toughened glass and pivot door.
NSW - Bermuda 3 Function Shower Rail.
NSW - Framed mirror above vanity.
NSW - Mizu Drift towel rail or rings (where applicable).
NSW - Mizu Drift toilet roll holder.
NSW - Quality Decina bath.
NSW - Stylus Symphony Linked Toilet Suite.
ACT - Large selection of ceramic tiles.
ACT - 1800mm high semi framed shower screens with clear toughened glass and pivot door.
ACT - Bermuda 3 function shower rail.
ACT - Framed mirror above vanity.
ACT - Mizu Drift towel rail or rings (where applicable).
ACT - Mizu Drift toilet roll holder.
ACT - Quality Decina bath.
ACT - Stylus Symphony Linked toilet suite.
ACT - Tapware: Posh Bristol MkII Mixer Tapware
NSW - Facade - As per Artist’s impression in face bricks and concrete tiles.
NSW - Windows - Architectural styled aluminium windows as per facade selected, energy efficient weather seals and locks to all windows.
NSW - Bricks - Choose from an extensive range of bricks from our manufacturer Austral (Everyday Life, Old Colonial, Wilderness and Whitsunday).
NSW - Roof - Colorbond roof in a range of colours
NSW - Hot Water - Rheem Stellar 160lt, 5 star storage gas hot water system.
NSW - Doors - Front door: standard selection from Hume Doors (Vaucluse range), Laundry door: XF3 with half glazed panel or glass sliding door ( Design Specific).
NSW - Door Furniture - Front entry: Gainsborough Governor, Laundry : Gainsborough Governor.
NSW - Garage - 4.8 wide sectional overhead garage door.
NSW - Concrete Floor - Engineer designed to M classification, Engineer designed to M classification, Cover Grade concrete finish to patio’s and alfresco’s (where applicable).
NSW - Flooring (Split Level Homes) - Concrete slab to ground floor, Yellow Tongue to mid and first floor.
NSW - Reticulated chemical pest protection.
NSW - Timber frame/22.5° pitch roof trusses (based on wind rating N2 W33N).
NSW - 42mm half splayed architraves and mouldings.
NSW - 180 day fixed price tender.
NSW - Tap - External: Front and rear.
NSW - Balconies - External handrails (Where applicable) are aluminium powder coated picket style handrail, tiled Balcony floors with slip resistant tiles from the standard range of floor tiles (excludes split level balconies).
NSW - Deck (rear split) - Modwood Composite Deck in choice of colours.
NSW - Deck Handrail (rear split) - Aluminium Powdercoated Picket Style.
ACT - 180 day fixed price tender.
ACT - Timber frame/22.5° pitch roof trusses (based on wind rating N2 W33N).
ACT - Geotechnical soil classification report.
ACT - Electronic detailed contour survey.
ACT - Fixed priced piering (concrete or screw piers) to even bearing as determined by engineer in accordance to standards AS 2870-2011.
ACT - Facade - Classic facade as artist’s impression in face bricks and concrete roof tiles.
ACT - Windows - Architectural styled aluminium windows as per facade selected.
ACT - Window hardware - Energy efficient weather seals and locks to all windows.
ACT - Concrete floor - Engineer designed to M classification.
ACT - Concrete floor - Engineer designed structural steel beams (where applicable).
ACT - Cover Grade concrete finish to Patio’s and Alfresco’s (where applicable).
ACT - Bricks - Choose from an extensive range of bricks from our manufacturer Austral (Everyday Life and Old Colonial).
ACT - Roof - Colorbond roof in a range of colours
ACT - Rheem Stellar 160lt, 5 star storage gas hot water system.
ACT - 4,500L aboveground slimline Colorbond water tank on concrete slab with pump and 90mm painted downpipes.
ACT - Garage door - 4.8 wide sectional overhead garage door.
ACT - Balconies (Two Storey & Split Level Only) - External handrails (where applicable) are aluminium powder coated picket style handrail.
ACT - Balconies (Two Storey Only) - Tiled Balcony floors with slip resistant tiles from the standard range of floor tiles (excludes Split Level balconies).
ACT - Split Level Only - Deck (rear split) - Modwood Composite Deck in choice of colours.
ACT - Split Level Only - Flooring - concrete slab to ground floor, yellow tongue to mid and first floor.
ACT - Split Level Only - Piers - 90x90 steel.